Nairobi - Madrid

Truswan Residences, Malindi, Kenya

A residential development in the Kenyan coast to follow a contemporary modern, with touches of Swahili coastal style.

In a seafront plot the development will include different residential typologies: Villas, Apartments and Townhouses as well as common areas with pool and amenities thought for a family-oriented culture. Read More >
cerrar

Truswan Residences, Malindi, Kenya

A residential development in the Kenyan coast to follow a contemporary modern, with touches of Swahili coastal style.

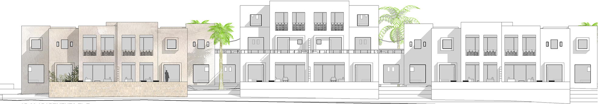
The aim of the project was to design a residential development on a site located in Malindi, on the Kenyan coast.

The plot is on the beach and will consist of 3 different typologies of residences: apartments, townhouses and villas. Each residential typology will occupy one layer of the plot (from the entrance and towards the beach) taking advantage also of the topography of the plot to maximize views towards the sea.

The first layer, which encompasses the 90m beach front, will allocate the 2 main villas and a Clubhouse. The second layer will hold 8 detached townhouses. The third layer will hold the apartment complex, which will have 12 units and the last layer will provide space for shared services.

The style will be contemporary modern with touches of Swahili coastal. The houses will have an open-plan concept.

Landscaping will respect the surroundings and will play with sand and white mangroves.

Location
Malindi, Kenya

Year
2018

Client
Private

Area
5.350m2

Collaborators

Renders
Supernova Visuals

Photos

Status
Design Stage