Nairobi - Madrid

Jeddah Culture Square, Jeddah, KSA

Culture Square: A Dialogue with the old town of Al-Balad

Part of the Jeddah Waterfront Regeneration Initiative, Culture Square creates a vibrant dialogue between past and present with two iconic cultural venues. Read More >
cerrar

Jeddah Culture Square, Jeddah, KSA

Culture Square: A Dialogue with the old town of Al-Balad

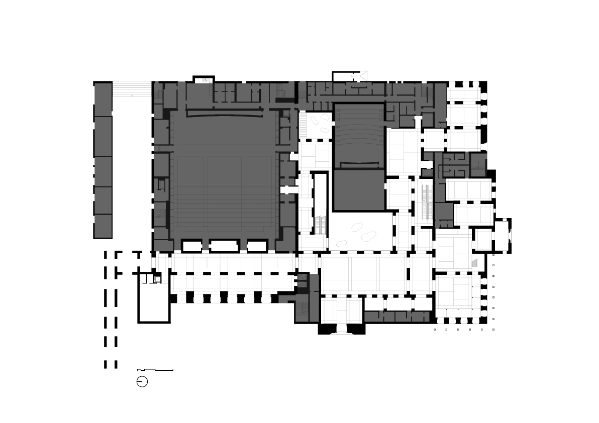
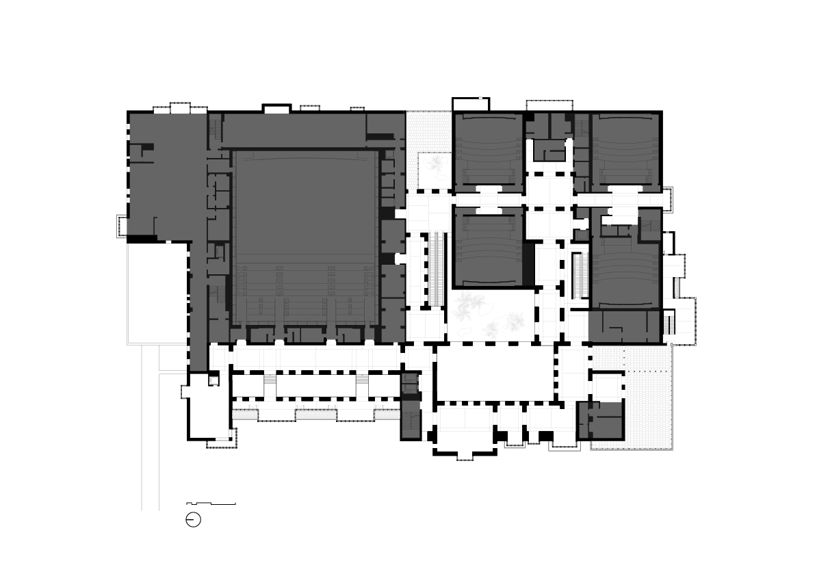
The Historic Jeddah Waterfront Regeneration Initiative is a key component of a broader vision to transform the area around Al Arbaeen Lagoon into a sustainable residential and commercial hub. Central to this effort is the Culture Square, designed to support the arts and culture scene in Historic Jeddah through specialized centers and facilities.

 

Located on the northern side of the lagoon, the Culture Square faces Al Balad, Jeddah’s historic district. It features two iconic buildings that serve as cultural landmarks at the end of the public promenade, establishing a visual and architectural dialogue with the old city. The square includes the main venue for the Red Sea International Film Festival and the teamLab Borderless Jeddah Art Museum, enriching the cultural landscape with diverse activities and positioning Historic Jeddah as a global cultural destination.

 

The project included the design of the façades of both buildings and the interior public spaces of the cinema venue. The proposal reflects the traditional urban fabric through a careful division and composition of spaces, using local and handcrafted materials alongside contemporary elements and vernacular architectural details. This blend results in a intervention that dialogues with Jeddah’s architectural heritage, bridging the old and new urban fabrics.

Location
Jeddah, KSA

Year
2025

Client
MOC JHD

Area
28.000m²

Status
Completed

Photos
Arch-Exist